Maison Montreuil

Rénovation, Montreuil
2023

© Julien Pepy Photographe

Cette maison de ville de 114 m², construite au début des années 1900 à Montreuil, a été entièrement rénovée pour une famille avec deux enfants. Le projet visait à moderniser la maison tout en préservant son caractère, et à offrir un cadre de vie confortable, lumineux et fonctionnel. 

La structure de la maison étant saine, l’enjeu principal était de lui redonner une nouvelle vie, tant sur le plan esthétique qu’énergétique. Les combles et les façades ont été isolés, et un système de chauffage au sol a été installé. La façade a également été ravalée dans un style plus contemporain.

À l’intérieur, le rez-de-chaussée a été entièrement repensé : création d’un grand espace de vie avec cuisine ouverte, d’une entrée fonctionnelle et d’une chambre parentale.

Chaque pièce a été conçue avec une identité propre, tout en conservant une harmonie globale grâce à l’usage de la couleur comme fil conducteur.

Le résultat est une maison chaleureuse, lumineuse et parfaitement adaptée à la vie familiale, où le charme de l’ancien dialogue avec la modernité.

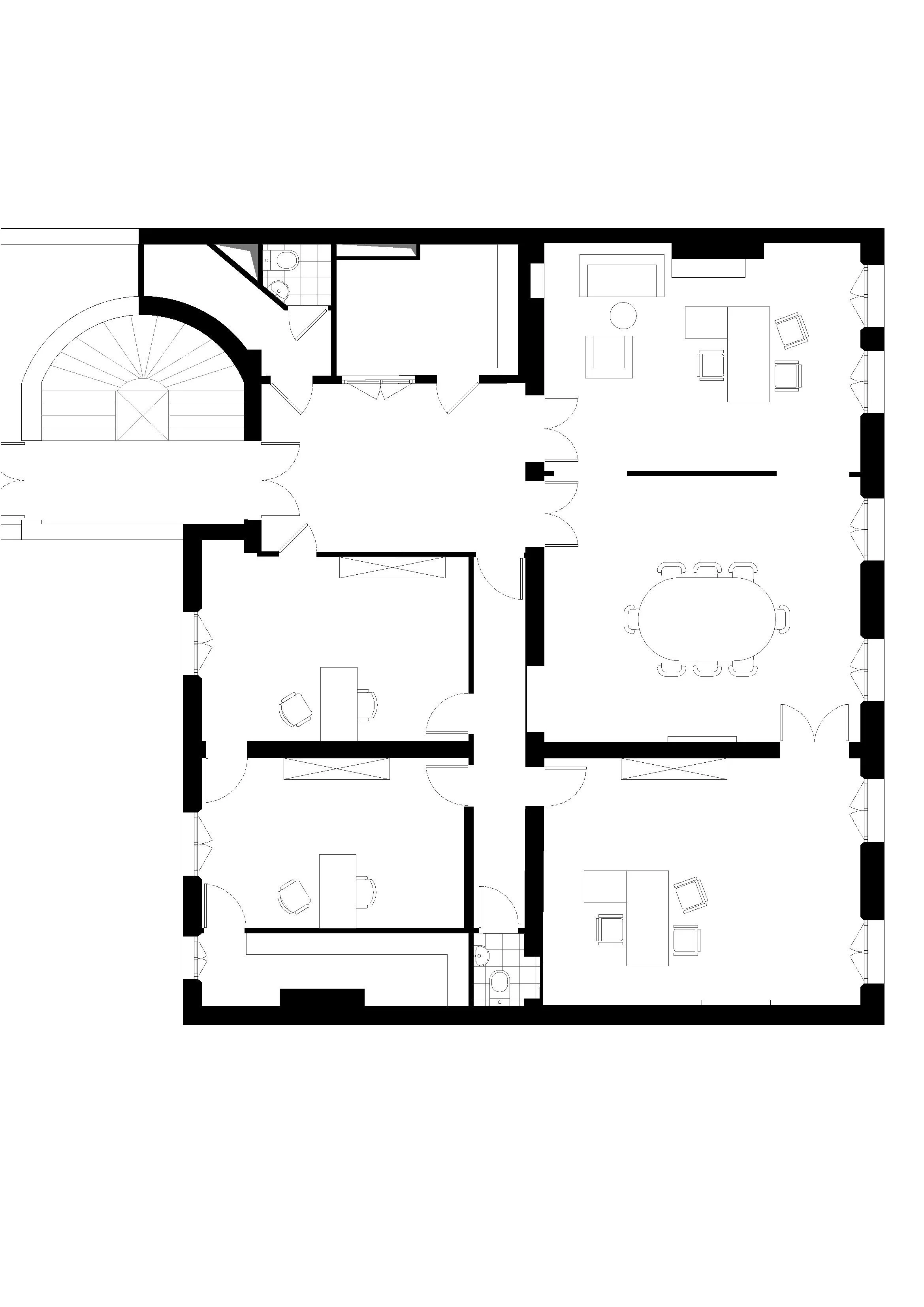
Appartement Beaujon

Rénovation, Paris
2023

Le projet transforme en logement 4 pièces un bureau d’avocat, installé depuis les années 90 dans un ancien appartement, au premier étage d’un immeuble Haussmannien, construit en 1860.

La grande salle à manger et le salon sont restaurés et leurs fonctions d’origine ont été rétablies. La chambre noble, transformée en suite parentale avec salle d’eau privative et dressing, reprend son usage initial.

Toutes les pièces humides, y compris la cuisine, sont recréées. Un bloc rassemblant la salle de bain, les toilettes, la salle d’eau parentale et le dressing occupe le fond du logement. Le nouveau volume dressing-salle d’eau s’insère dans la chambre en se détachant du plafond, laissant continuité et visibilité aux moulures et décors.

De l’autre côté du logement, la nouvelle cuisine est installée à proximité de la salle à manger, avec une vue sur cette dernière, grâce à l’ouverture d’un placard.

L’organisation des espaces et les matériaux ont été choisis pour répondre à certain niveau de standing. Le projet ne vise pas à dénaturer les espaces mais à les épurer et à leur donner le confort nécessaire d’un logement moderne et familial.

Une amélioration de la performance énergétique (niveau C) est atteinte grâce à l’installation d’une chaudière à condensation, et à la pose de fenêtres double vitrage dans les chambres côté cour.

41 logements collectifs

Construction, Gonesse
2020

Maîtrise d’œuvre: Atelier Téqui Architectes
Ilaria Festa cheffe de projet

Photos: © Charly Broyez

Le projet développé pour Toit et Joie pour la création de 41 logements réponds aux contraintes d’un site caractérisé par sa profondeur, pour installer un bâtiment constitué de 3 plots sur 3 niveaux en retrait, qui s’organisent entre 2 cours intérieures sur un niveau de parking semi-enterré.

Ce parking fonctionne comme un socle pour un cheminement parfaitement horizontal et réglé sur la hauteur du trottoir existant pour la desserte des 3 halls et des locaux collectifs. Le long de ce cheminement, les terrasses de logements à RDC sont protégés par une jardinière plantée qui créé à la fois un obstacle physique et un écran visuel. Des garde-corps et protections visuelles en acier perforé et treillis soudé, support de plantes grimpantes plantées dans les grandes jardinières à RDC. Tous les grands logements bénéficient d’une double orientation et d’un espace extérieur.

Contactez-nous